LK-XX楔形流量计是一种新型差压式流量测量仪表,其检测件是一个V字形楔块(又称楔形节流件),它的圆滑顶角朝下,这样有利于含悬浮颗粒的液体或粘稠液体顺利通过,不会在节流件上游侧产生滞留。因此它可以在高粘度、低雷诺数的流体情况下进行高精度的流量测量;在流速较低、流量小、管径大的流量测量场合有无可比拟的优势和不可替代的作用。主要用于高粘度(重油、渣油、柴油、机油等)、工业煤气(焦炉煤气、高炉煤气、发生炉煤气、城市煤气)、氢气、氮气、空气、水蒸汽、污水液体等介质的流量测量。
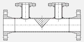
楔形流量传感器结构如右图所示。楔形流量传感器的检测件是楔形孔板,它是一块V形节流件,它的圆滑顶角朝下,这样有利于含悬浮颗粒(粉尘、泥沙及其它固体颗粒)流体和高粘度液体流过时在节流件上游侧不会产生滞流,也不会在节流体上、下游侧发生固体颗?;蛘吵砦锏幕?,从而确保了楔形流量传感器长期运行精度在0.2级,这样高的长期运行精度在流量测量领域是迄今少见的。 |
![]() |
流量方程式------------------------------------------------------------------------------------------------------------------ | |
![]() |
式中: |
LK-XX楔形流量计特点
1. 可用于粘滞性液体的流量测量,黏度可高达500mPa·S,如燃油、渣油及重油等。
2. 适用于含悬浮颗粒的液固混合物,如浆状流体、污水等的流量测量。
3. 混相流型楔形流量计可用于泥浆、煤水悬浮液、煤焦油、悬浊液等液固两相流。
4. 雷诺数使用范围宽广,可适用于极低的雷诺数(ReD=300),而雷诺数上限可达106以上,因此亦可用于气体、蒸汽之类流体的流量测量。
5. 差压信号稳定可靠,测量精度高,重复性好,压力损失低。
6. 抗磨损免维护(无可动部件)。
7. 整体结构形式无可动部件,使用寿命长。
8. 安装方便,免于维护。
9. 双向流量测量。
10. 具有最小的直管段要求:上游5倍管道直径,下游2倍管道直径。
LK-XX楔形流量计技术参数指标
1、 精度:±1.0%读数(标定)、±1.5%
2、 重复性:±0.2%读数
3、 公称通径: 25 mm~800 mm
4、 工作温度: -200℃~+530℃
5、 公称压力:- 0.1 MPa~42 MPa
6、 楔形比:0.2 0.3 0.4 0.5
7、 量程比:10:1
8、 低雷诺数测量(最低为ReD=300)
9、 参照标准:GB/T2624-2006、 JJG640-94及流量测量节流装置设计手册
10. 连接方式:法兰连接、焊接、螺纹连接
楔形流量计结构形式
楔形流量计按其组装方式分为一体型和分离型,按其连接方式分为法兰连接、焊接连接、螺纹连接及对夹式连接,按其取压方式分为普通取压、法兰密封取压等结构
对 夹 式
焊 接 式
法兰连接
法兰连接法兰取压
一体化安装
LK-XX楔形流量计安装注意事项
1、 一般楔形流量传感器附有前后测量管,可在水平或垂直安装及使用。当传感器在垂直管道上安装时,流体应自上而下流动。测量液体时应注意使差压变送器能翻遍地排除气泡,以免引起仪表零点漂移;
2、传感器上下游侧应配置直管段,管道内壁应光滑、清洁、无附着物,只管段长度如表
3、 水平安装时,楔式差压元件应与管道中心线成90度。对于垂直安装,由于取压点之间轻微的静压影响必须注意差压变送器调零楔形流量计上游侧最小直管段
如下表
楔形比 H/D |
上 游 侧 最 短 直 管 段 |
|||
弯头90° |
T形三通 |
球阀 |
闸阀(全开) |
|
0.2 |
6 |
6 |
10 |
6 |
0.3 |
8 |
8 |
11 |
6 |
0.4 |
12 |
12 |
14 |
8 |
版权所有 Copyright(©)2009-2011 江苏力科仪表有限公司
电话号码:0517-86909222 商务热线:15305232668 传真:0517-86909221
地址:江苏省金湖县工业园
技术支持:易品网站建设专家 苏ICP备13047422号-2