一、产品简介
LKCYDK102智能数字压力开关是集压力测量,显示,输出,控制于一体的压力测控产品。该产品为全电子结构,前端采用隔离膜充油压阻式压力传感器,输出信号由高精度,低温漂的放大器放大处理,高精度的 A/D 转换器,转换成微处理器可以处理的数字信号,经过运算处理的信号控制两路开关,对控制系统压力进行测控。该智能数字压力开关使用灵活,操作简单,调试容易,安全可靠。广泛应用于水电,自来水,石油,化工,机械,液压等行业,对流体介质的压力进行测量、显示和控制。
二、技术性能
量 程 范 围 |
0~5、20、100……1000KPa |
0~2、20、40……60MPa |
|
测 量 介 质 |
与 316L不锈钢兼容的各种气体、液体 |
供 电 电 压 |
24VDC |
显 示 方 式 |
4位数码管 |
显 示 范 围 |
-1999~9999 |
控 制 精 度 |
≦± 0.5%FS |
显 示 精 度 |
± 0.1%FS |
长 期 稳 定 性 |
≤±0.2%F.S/年 |
介 质 温 度 |
- 20~+85℃ |
环 境 温 度 |
- 30~+70℃ |
相 对 湿 度 |
0~80% |
响 应 时 间 |
≤1ms |
最 大 功 耗 |
< 3W |
开 关 寿 命 |
> 100万次 |
膜 片 材 料 |
316L不锈钢 |
壳 体 材 料 |
1Cr18Ni9Ti |
压 力 接 口 |
外螺纹 G1/4或用户自定 |
引 线 方 式 |
五芯航插 |
防 护 等 级 |
IP65 |
三、产品特点
1 、 4 位数字显示当前压力值
2 、模拟量输出( 4~20mA )
3 、开关量可在零点到满意度之间任意设定
4 、外壳设有节点动作发光二极管,便于观察
5 、按键调校及现场设置各种参数,操作方便
6 、 2 路开关量输出,带载能力 1.2A
7 、压力预设开关点和延滞切换输出
四、安装
4.1 机械安装:
智能数字压力开关CYDK102 可以通过压力管接头(外螺纹 G1/4 )(其他尺寸接头可以在订货时说明),直接装在液压管路上。在关键应用场合(如剧烈震动或冲击),压力管接头可以通过微型软管进行机械解耦。
4.2 电气连接:
1 红:电源 + 2 黄:电源 -
3 蓝:开关 1 4 绿:开关 2
5 棕: 4~20mA
为了防止电磁干扰的影响应注意以下事项:
• 线路连接尽量短
• 采用屏蔽线
• 尽量避免直接接近引起干扰的用户装置或电器和电子装置的接线
• 若用微型软管安装,壳体必须单独接地
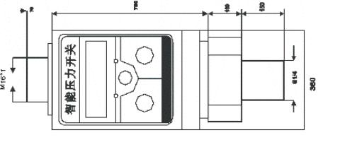
五、外形尺寸 (单位: mm )
版权所有 Copyright(©)2009-2011 江苏力科仪表有限公司
电话号码:0517-86909222 商务热线:15305232668 传真:0517-86909221
地址:江苏省金湖县工业园
技术支持:易品网站建设专家 苏ICP备13047422号-2